产品中心

服务创造价值、存在造就未来

当前位置:首页>产品中心

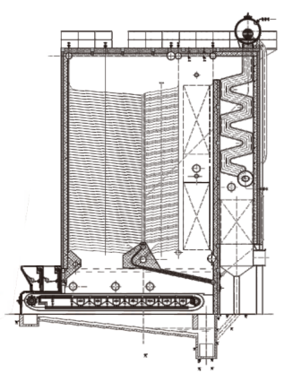
生物质卧式有机热载体锅炉

上架时间:2025-12-23
浏览次数:149
产品类型:
产品颜色:
产品价格:¥
产品详情

一、生物质燃料与燃煤相比,点火容易,着火快,燃烧停止以后炉内热强度下降迅速,生物质有机载体炉的燃烧及炉温易于控制,调节迅速,变负荷能力强。

二、炉拱设计合理,前后拱之间设置折焰墙,炉内惯性除尘等措施,适应生物质燃料的燃烧特性,烟气在炉膛内停留时间长,燃烧更充分,有利于分离烟尘,降低原始排尘深度。

三、炉膛受热面采用双密错列盘管,受热面布置充足,降低管子表面热负荷,导热油使用更安全。

四、采用自动温度控制功能,可实现稳定的加热和精确的温度调节。

五、具有完备的运行控制和安全检测装置,操作方便,安全可靠。


微信图片_20251223085905_58_1.png

上一篇:卧式燃油(气)有机热载体锅炉

下一篇:电加热有机热载体炉

发表评论:

评论记录:

未查询到任何数据!

在线咨询

点击这里给我发消息 售前咨询专员

点击这里给我发消息 售后服务专员

在线咨询

免费通话

24小时免费咨询

请输入您的联系电话,座机请加区号

免费通话

微信扫一扫

微信联系
返回顶部