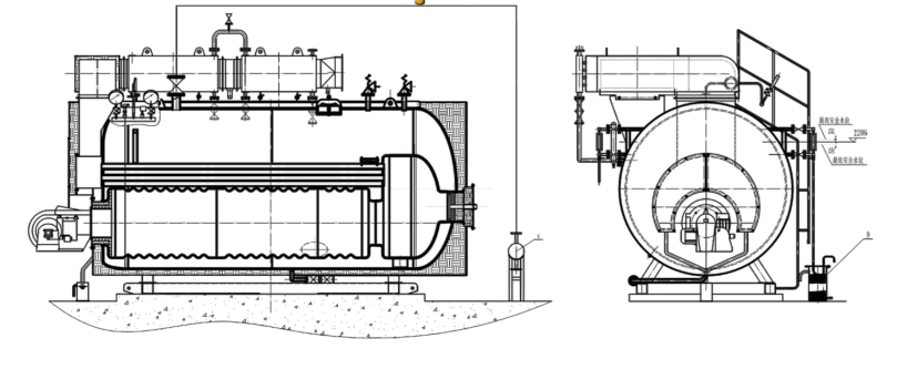
WNS系列卧式二回程全无拉撑卧式内燃燃油、燃气蒸汽锅炉品位魅力表现在:WNS系列全自动燃气蒸汽、热水锅炉采用锅売式二回程、全湿背结构。燃料在炉胆内正压燃烧,高温烟气沿炉胆向后经回燃室进入锅炉本体内
的烟道管束,经前烟箱180°转折后进入节能器、冷凝器再进烟囱排入大气。为供暖、工业生产用汽提供无穷的动力,这个锅炉的特点如下:
1、高效
高效措施具体体现:
1) 锅炉本体采用高效传热螺纹烟管,配以低温烟气热能回收翅片管节能器和翅片管冷凝器,分级科学合理利用烟气热能,使锅炉各零部件的传热均处于高效区:在额定负荷时锅炉的排烟温度为40~60°C之间,为低度冷凝锅炉,锅炉的热效率达101%;75%额定负荷时翅片管节能器和翅片管冷凝器均在烟气冷凝状态下运行,热效率可升高至103-104%,而传统的三回程结构卧式内燃燃气锅炉的额定负荷热效率达约91%。
2)锅炉本体与外保温之间的所有连接件均采用绝热措施,锅炉外表面温度均小于50°C减少锅炉的散热损失,提高了锅炉的热效率。
3)锅炉本体与其支撑腿之间的连接及观火孔装置采用我公司的专利技术,可靠的绝热,进一步降低锅炉的散热损失,提高锅炉的热效率。
4)对于蒸汽锅炉,锅壳内检修空间明显增大,汽水空间加大,锅内采用水平流动蒸汽分离技术,使锅炉的蒸汽湿度≤0.5%,提高了蒸汽的品质,降低了用热系统的总效率,从而达到提高锅炉效率降低能源消耗的目的。
2、 安全
锅炉本体由准刚性体转变为准柔性体,取消全部拉撑件包括:上部斜拉杆、后部短拉杆下部粗大长拉杆,更不存在腰圆形回燃室上下證的加固横梁。
安全措施具体体现:
(1)采用柔性端板——锅壳采用前拱形管板与后椭球形封头;回燃室也采用后椭球形封头,形成新结结构形式。
(2)柔性端板与柔性炉胆及刚度小的螺纹烟管相配合,明显降低整体刚性,有效降低不同元件因壁温差异较大而引起连接处的热应力。
(3)简化部件、减少作业工艺量,减少监检节点。
(4)蒸汽、热水锅炉采用回水冷却高温管板措施,改善高温管板区域的工作状态,增强了高温管板的安全可靠性。
(5) 安全可靠贯串在产品的整个生产过程中体现在:
1)产品图纸经国家质量总局许可的(省、地方)质监检测中心审批:
2)产品质量,经国家质量总局许可的锅炉检验所全程监督,逐台签认出厂。
(6)锅炉运行自动化,程序控制点火燃烧,自动补给水,高低水位保护,蒸汽超压保护,熄火保护,燃气检漏保护,全过程由电脑自动控制。操作简便,噪音小。
3、节能环保型
能源和环境早已成为国内外关注的焦点。本系列锅炉的热效率均大于101%,已超过国家节能标准,节约日益紧张和昂贵的能源,对企业、对国家意义重大。本系列锅炉采用优质的燃烧机,燃烧完全,加上我们精心设计的波形炉胆形状特性与火焰形状相匹配,能得到完全展开的火焰。锅炉采用正压燃烧,燃烧更加强烈;充满度又好,充分发挥炉内高温辐射换热与火焰高温成四次方成正比的强烈传热效果,一般辐射吸热都占50%的份额。有效辐射传热,是有效节能的主要成份。排烟成份中的Sox、NOx符合GB13271-2014《锅炉大气污染物排放标准》中要求,根据不同城市的环保要求,选择燃烧器时可选择普通型(Sox ≤200mg/m3)、低氮型(Sox≤80mg/m3)和超低氮型(Sox≤30mg/m3)燃烧机。
4、负荷变化适应性强
本系列锅炉水容积大,与一些锅炉相比,对负荷变化的适应性强。
5、便于检修、使用方便
1)便于锅壳内操作、检修与维护,快装锅炉安装快捷、使用方便。
2)本系列锅炉结构紧凑安装运输方便。

售前咨询专员
